N44mii
2025-03-24T09:05:57+00:00
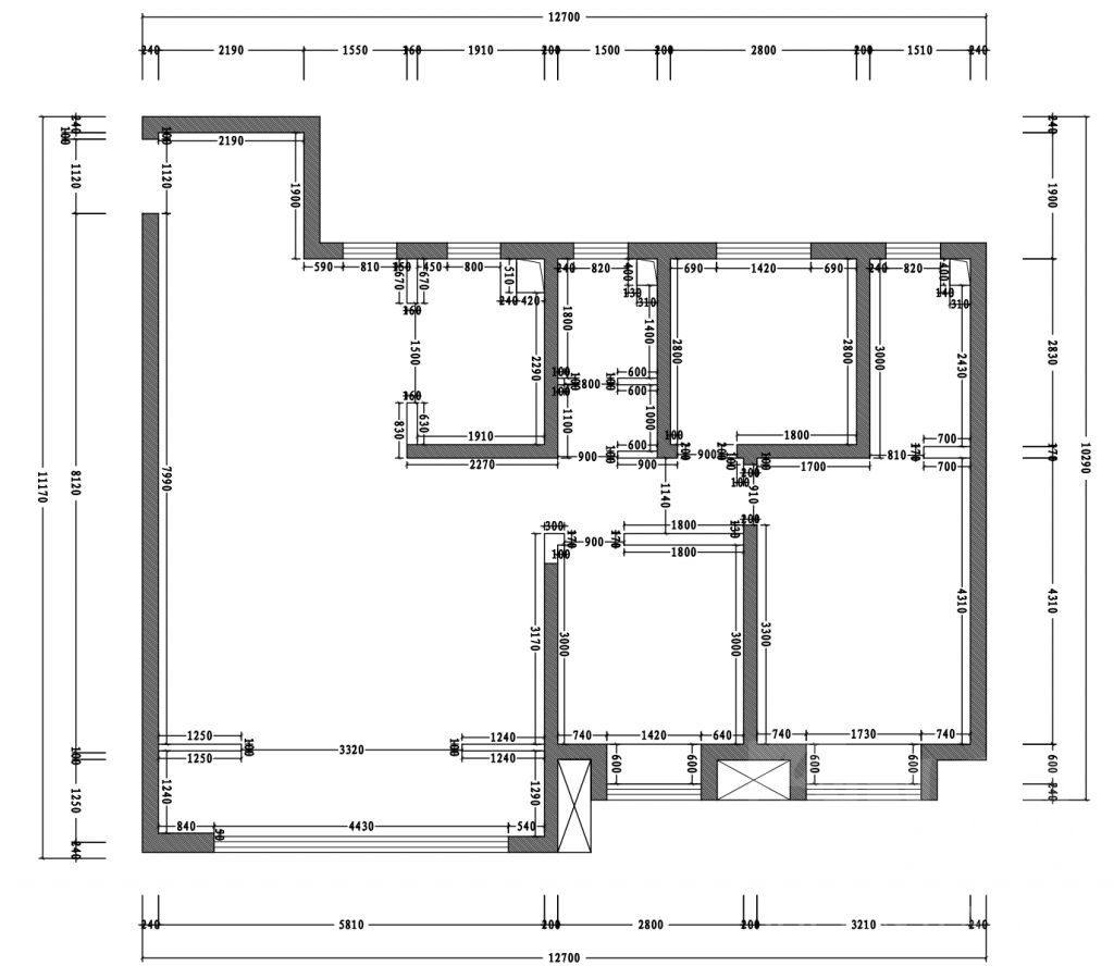
求问有装修经验的老哥解答
主要核心3个问题:
1、烟具安装在和烟道一侧但是能否与烟道拉开一段距离?(大概如图蓝框位置)。目的是为了在水槽洗菜区域和烹饪区域中间留一段作为备菜区(如图黄色区域)保证整个动线。
2、水槽区域实测大概长度有1400(如图上方的红框区域),能否塞下大单盆水槽、17套洗碗机、垃圾处理器、大白瓶这些东西
3、如果把冰箱塞到厨房里(如图下方的红框区域),感觉再要把蒸烤箱塞进去不太好布置?整个厨房就好挤的样子
这厨房真的好小,位置好怪,我太难受了



感恩各位老哥,早日发财
主要核心3个问题:
1、烟具安装在和烟道一侧但是能否与烟道拉开一段距离?(大概如图蓝框位置)。目的是为了在水槽洗菜区域和烹饪区域中间留一段作为备菜区(如图黄色区域)保证整个动线。
2、水槽区域实测大概长度有1400(如图上方的红框区域),能否塞下大单盆水槽、17套洗碗机、垃圾处理器、大白瓶这些东西

3、如果把冰箱塞到厨房里(如图下方的红框区域),感觉再要把蒸烤箱塞进去不太好布置?整个厨房就好挤的样子
这厨房真的好小,位置好怪,我太难受了




感恩各位老哥,早日发财



